Wetherby, Coniston Way, LS22


Sold STC

£625,000

4 1 3

Situated in a quiet cul-de-sac location on this well-established development off Spofforth Hill, 23 Coniston Way is a well-presented and extended detached family home within walking distance of Wetherby town centre and a wide range of local amenities.

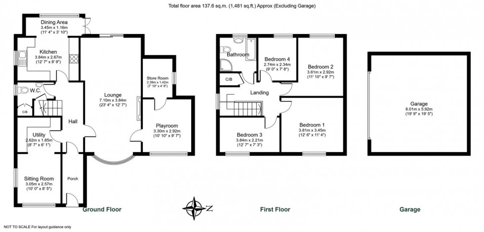
The property offers flexible and spacious accommodation, ideal for modern family living. On the ground floor, there is an entrance porch and hallway which leads to a bright through lounge with a contemporary fireplace and access to the rear garden through patio doors, a separate sitting room, and a useful playroom with an adjoining store room or office. The kitchen has been enlarged to create a practical dining area and includes a range of modern wall and base units and integrated appliances and updated worktops. A utility room, downstairs WC, and understairs storage cupboard complete the ground floor.

Upstairs, there are four good sized bedrooms served by a modern family bathroom with a white suite, including a separate shower cubicle, bath, WC, and wash basin, with tiled walls and flooring.

Outside, a generous Yorkshire stone driveway provides ample off-road parking and leads to a detached double garage with power and lighting. The front garden is lawned with mature hedging for privacy, while the enclosed rear garden features a block-paved patio—ideal for outdoor entertaining—plus a lawn and borders.

The property benefits from gas central heating and double glazing throughout and represents an excellent opportunity to acquire a well-proportioned home in a sought-after location.

  • Four bedrooms and modern bathroom
  • Spacious through lounge, playroom and sitting room
  • Well fitted and extended kitchen with separate utility room
  • Replacement doors and kitchen worktops
  • Gas central heating and double glazed windows
  • Double detached garage
  • Generous sized private gardens
Floorplan for Wetherby, Coniston Way, LS22
EPC Graph for Wetherby, Coniston Way, LS22
Similar Properties

Get an instant online valuation

Find out how much your property is worth