Linton, Sicklinghall Road, LS22


For Sale

Offers Over £1,349,000

5 3 4

An impressive and significantly extended five bedroom three bathroom detached family home occupying an enviable position with generous sized garden plot affording south facing private gardens to the rear. Available with benefit of no upward chain. 

Property Details

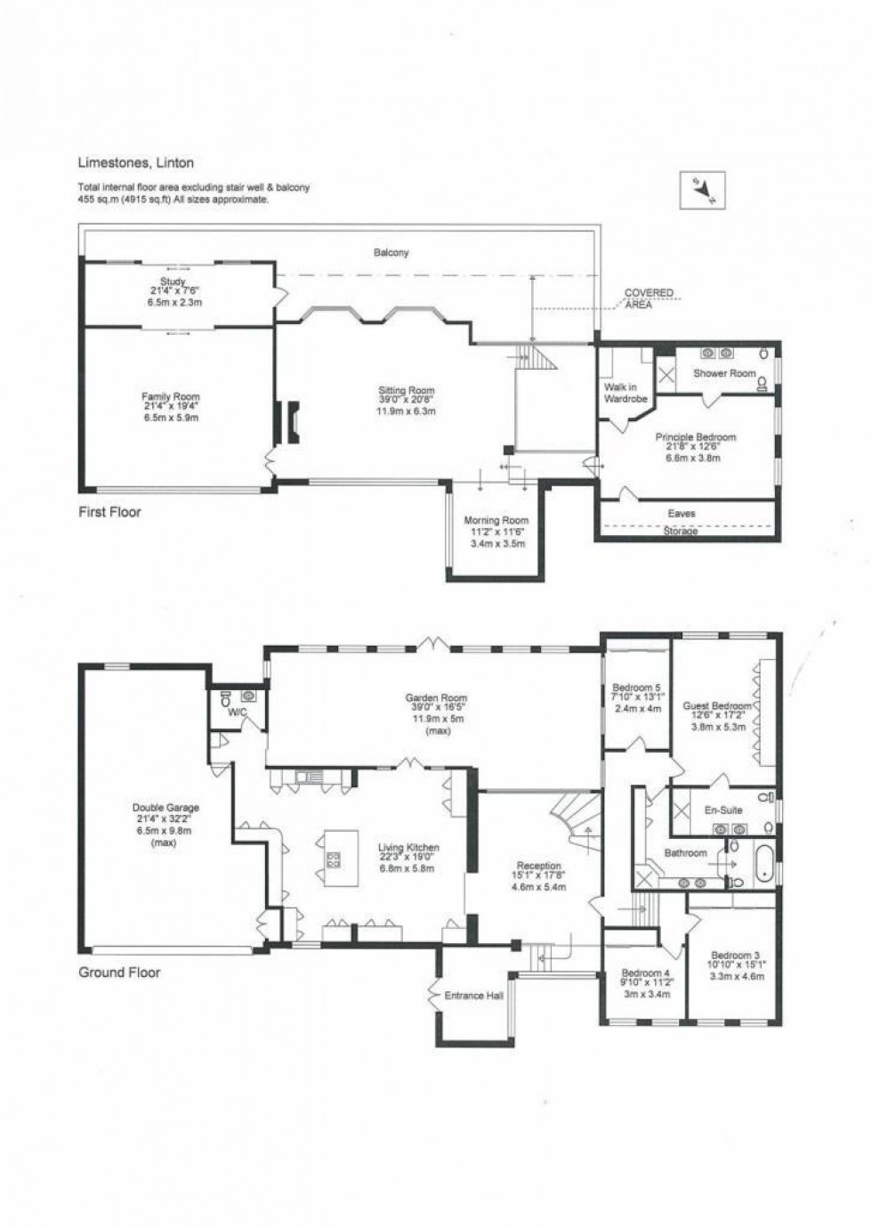
To the ground floor; entering into a decorative entrance hallway with feature wall of exposed limestone and ornate sweeping staircase to 1st floor. An open plan kitchen diner is fitted with a modern handle-less range of high gloss wall and base units with black granite work surfaces, shaped central island unit with bar stool seating. Integrated appliances include an electric double oven and in built microwave, electric induction hob with extractor hood, fridge and freezer along with under counter wine fridge. Attractive tiled flooring connects the kitchen and dining areas with a utility space and downstairs wc.
Extended to the rear a generous sized garden room with double glazed windows and French style patio doors onto the rear garden patio area. Feature walls of exposed stonework give character and charm.
A doorway from the reception hallway leads to an inner hall accessing the ground floor bedrooms. Bedroom two is a generous sized double with fitted wardrobes the length of one wall, two full length double glazed windows looking into rear garden and generous sized ensuite shower room.  Bedrooms three, four and five are all comfortable double rooms with mirror fronted fitted wardrobes in each, the house bathroom is fitted with a porcelain bidet, panel bath and step in corner shower cubicle, his-and-hers wash basin, tiled walls and flooring.
 
To the first floor; a bright and open living room enjoys elevated aspects to front and rear through large picture windows. An elegant sweeping balustrade to the staircase and enriched cornice details gives a luxurious feel to this impressive first for living space. A feature fireplace and exposed limestone pillars offers warmth and texture.
Extended above the garage is a further generous sized reception room with exposed brickwork and large picture window to front. Sliding patio doors open into a large office space with further double doors onto raised south facing balcony offering elevated views over the rear garden.
 
The master bedroom is fitted with large walk-in wardrobe closet and generous size ensuite shower room. Access to additional eaves storage space is available.
 
To the outside; electrified iron gates open to a generous sized driveway providing off-road parking for multiple vehicles and access to an integral double garage with electric up and over door, light and power laid on.
 
The substantial garden plot is a particular feature of this fantastic property. A decorative front garden is set largely to lawn boarded with shaped and neatly maintained flower bed borders housing a range of flowering bushes and shrubs behind limestone perimeter wall. The south facing rear garden is of generous proportions set largely to lawn boarded with established and neatly maintained hedgerow perimeter affording excellent privacy. A Yorkshire stone flagged raised patio area provides an ideal space for outdoor entertaining and relaxation along with barbecue and alfresco dining in the summer months.
  • A substantial and extended detached family home
  • Five double bedrooms, three bathrooms, four reception rooms
  • In excess of 4,800 sq ft including double garage
  • Kitchen diner with integrated appliances
  • Private and established gardens
  • Yorkshire stone flagged patio seating area
  • Raised south facing balcony to the rear
  • Driveway parking and integral double garage
  • Walking distance to Wetherby Golf Club and Wetherby town centre amenities
Floorplan for Linton, Sicklinghall Road, LS22
EPC Graph for Linton, Sicklinghall Road, LS22
Similar Properties

Get an instant online valuation

Find out how much your property is worth